Construction House Plan With Electrical Layout Plan
Description
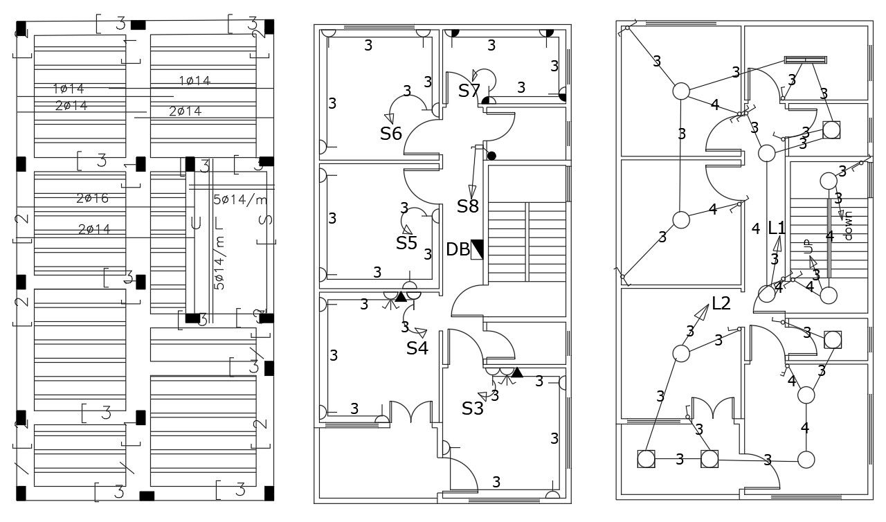
2D CAD drawing of house construction plan includes column supported reinforcement slab bars structure detail and electrical layout plan design CAD drawing. download DWG file of house plan working drawing.
File Type:
Autocad
File Size:
225 KB
Category::
Electrical
Sub Category::
Light Fixtures & Fittings
type:
Gold
Uploaded by:
