House Plan With Sanitary Layout CAD Drawing

House Plan With Sanitary Layout CAD Drawing
Profile

Uploaded by:

Komal

Description
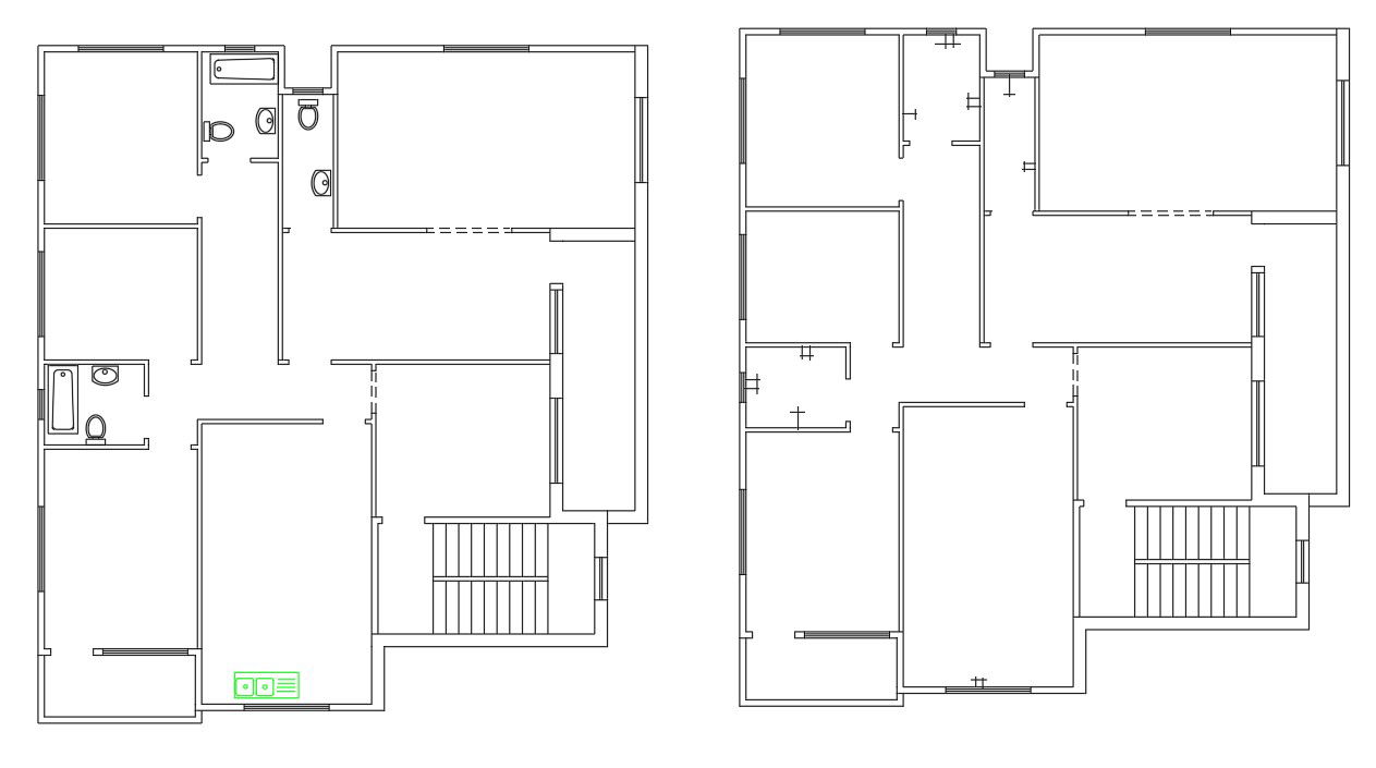
Download free DWG file of 3 bedroom house floor plan with sanitary ware installation idea detail in CAD drawing. this drawing has been drafted in AutoCAD 2019 software.
Profile

Uploaded by:

Komal

find Latest

Related Files

WhatsApp Chat