LOGIN
HOME
CATEGORIES
UPLOAD FILE
PRICING
HOUSE PLAN
ABOUT US
CONTACT US
Free House Section AutoCAD Drawing
Home
Categories
Architecture
Bungalow House Design
Free House Section AutoCAD Drawing
Uploaded by:
Komal
View Profile
View Profile
Description
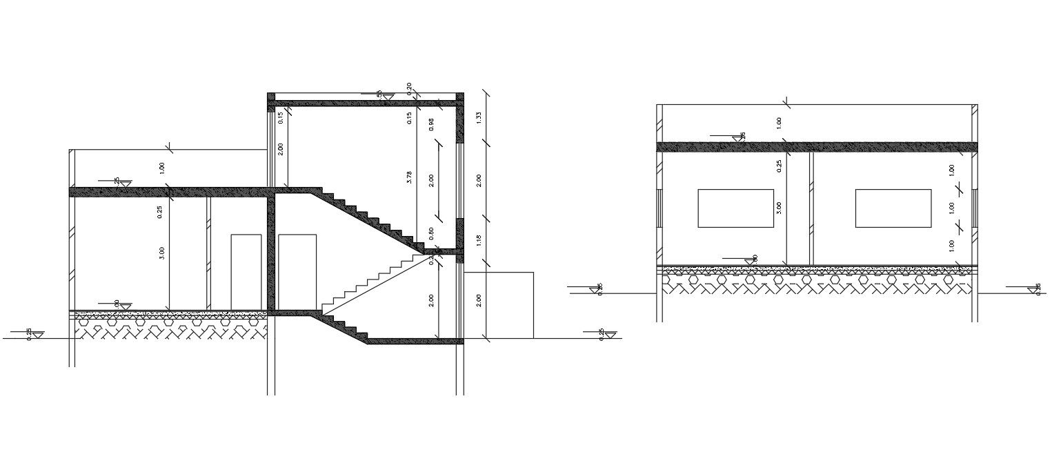
Download free AutoCAD drawing of house building section drawing that shows RCC floor, slab, and staircase with all dimension detail.
File Type:
Autocad
File Size:
454 KB
Category::
Architecture
Sub Category::
Bungalow House Design
type:
Gold
Uploaded by:
Komal
View Profile
Download
Add to libary
find Latest
Related
Files