Column Foundation Plan With Centre Line CAD Drawing
Description
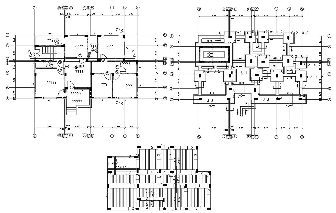
the construction working plan AutoCAD drawing includes column footing plan with excavation design and centre line detail. also has element analysis of reinforced concrete slab which is support on column and slab bar design.
Uploaded by:

