LOGIN
HOME
CATEGORIES
UPLOAD FILE
PRICING
HOUSE PLAN
ABOUT US
CONTACT US
3 Bedroom House Plan AutoCAD Drawing DWG
Home
Categories
Architecture
Bungalow House Design
3 Bedroom House Plan AutoCAD Drawing DWG
Uploaded by:
Komal
View Profile
View Profile
Description
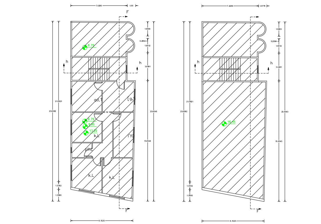
2D CAD drawing of house ground floor plan and terrace plan CAD drawing includes dimension detail and hatching design CAD drawing.
File Type:
DWG
File Size:
57 KB
Category::
Architecture
Sub Category::
Bungalow House Design
type:
Gold
Uploaded by:
Komal
View Profile
Download
Add to libary
find Latest
Related
Files