Simple House Floor Plan With Electrical Layout Plan
Description
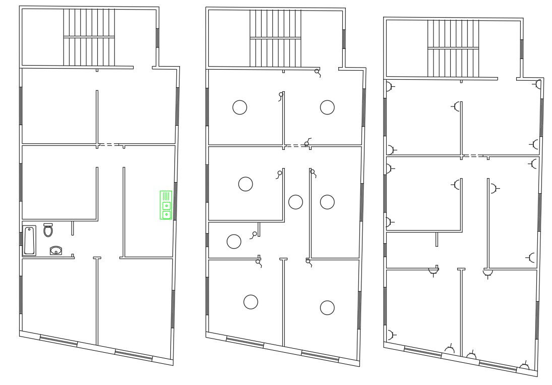
2D CAD drawing of a simple house floor plan includes sanitary ware detail and electrical layout plan design shows ceiling fan point and switchboard detail CAD drawing. download DWG file of 3 bedroom project detail.
Uploaded by:

