Side Elevation Design Of Two Floor House AutoCAD File
Description
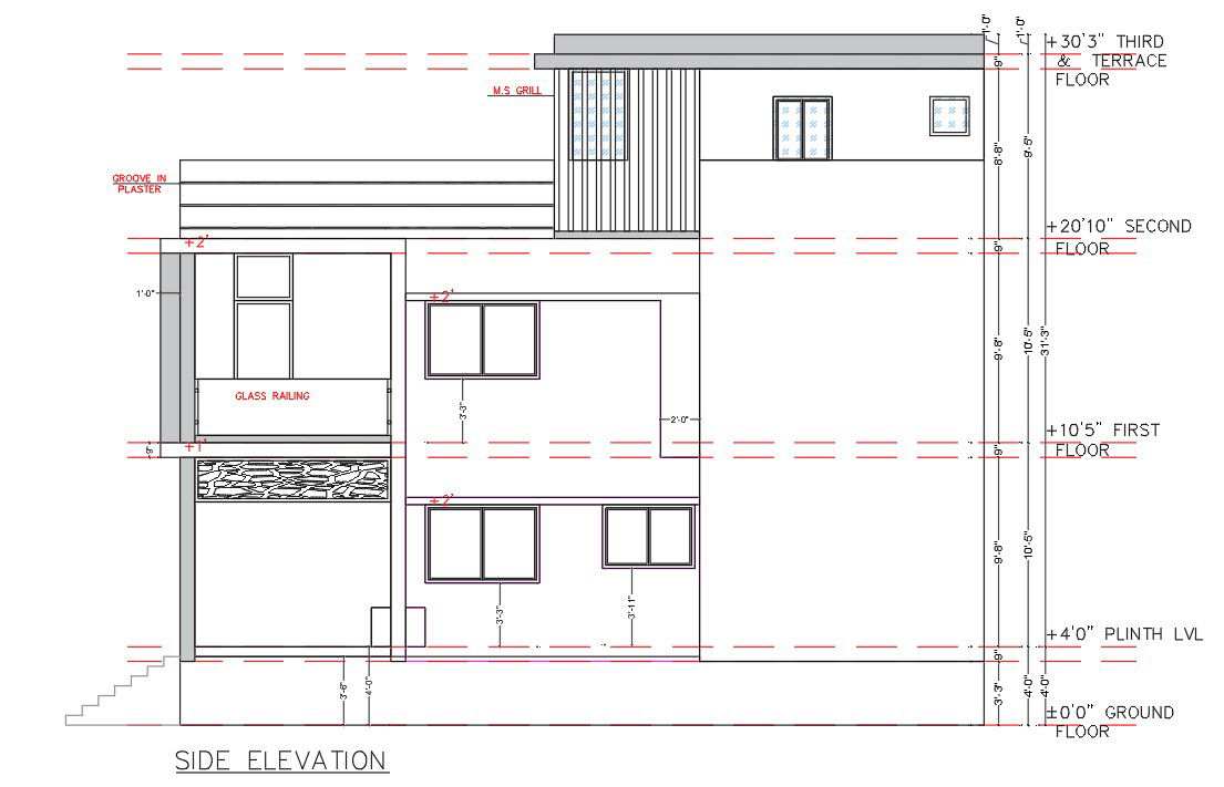
this is the drawing of residential house elevation design with floor levels dimension details, canopy design in terrace floor, groove design in parapet, doors and windows details in elevations.
Uploaded by:
Rashmi
Solanki

