55'X 37' Presentable Bungalow First Floor Plan AutoCAD Drawing
Description
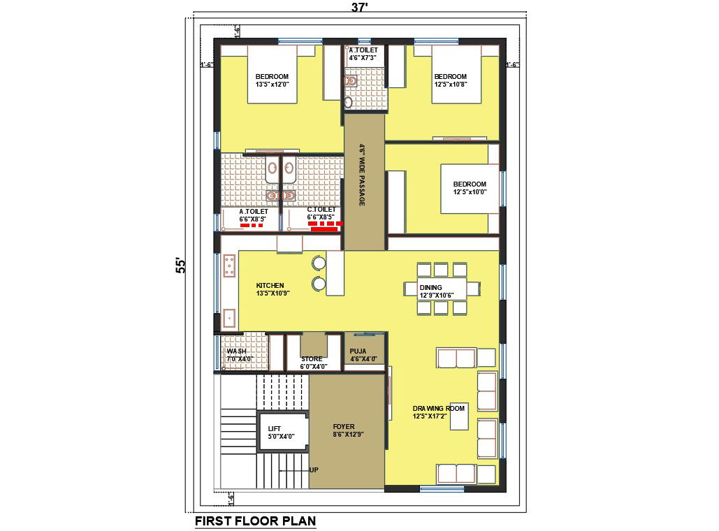
architectural drawing of fully furnished first-floor plan of huge bungalow layout design with good presentation.in this drawing added stair, foyer, main drawing room, kitchen, dining area, store, puja, three bedrooms, with attached toilets, wash yard and other more details related to home.
Uploaded by:
Rashmi
Solanki

