2 BHK AutoCAD House Plan Design CAD Drawing

2 BHK AutoCAD House Plan Design CAD Drawing
Profile

Uploaded by:

Komal

Description
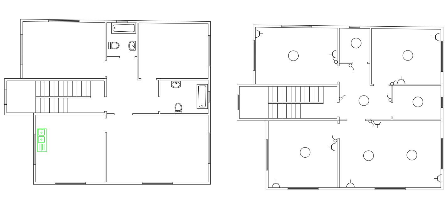
Download 2d CAD drawing of residence house floor plan with sanitary ware detail and electrical layout plan design AutoCAD drawing. download a simple house plan drawing DWG file.
Profile

Uploaded by:

Komal

find Latest

Related Files

WhatsApp Chat