Fully Furnished First Floor House Plan AutoCAD File
Description
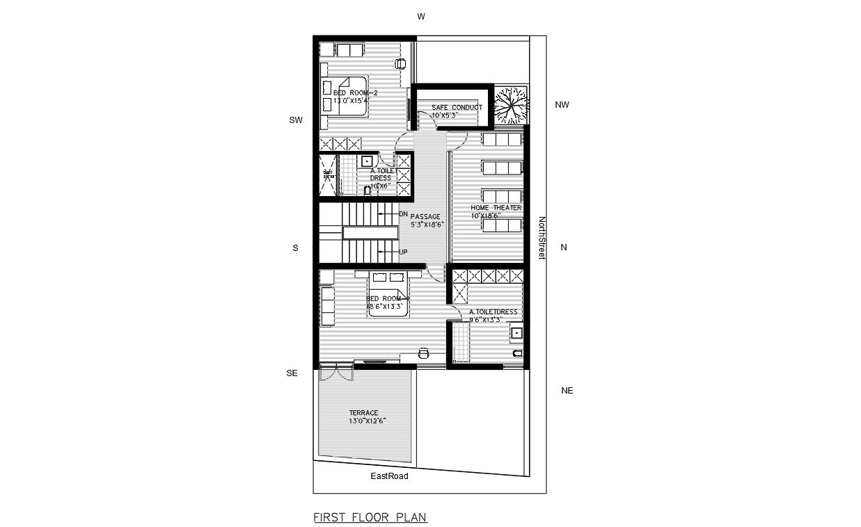
as per vastu bungalow planning design of first floor with furniture layout plan.in this drawing added two bedrooms with toilets and dress area, safe-conduct, theatre, passage and this is the good presentable bungalow design.
Uploaded by:
Rashmi
Solanki

