LOGIN
HOME
CATEGORIES
UPLOAD FILE
PRICING
HOUSE PLAN
ABOUT US
CONTACT US
Shop Building Design Free Download
Home
Categories
Architecture
Corporate Building
Shop Building Design Free Download
Uploaded by:
Komal
View Profile
View Profile
Description
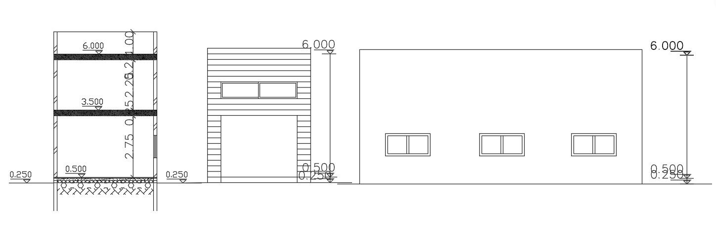
Free download shop building design elevation design and section drawing with dimension detail in AutoCAD format.
File Type:
DWG
File Size:
199 KB
Category::
Architecture
Sub Category::
Corporate Building
type:
Free
Uploaded by:
Komal
View Profile
Download
Add to libary
find Latest
Related
Files