Second Floor Plan Of House Design AutoCAD File
Description
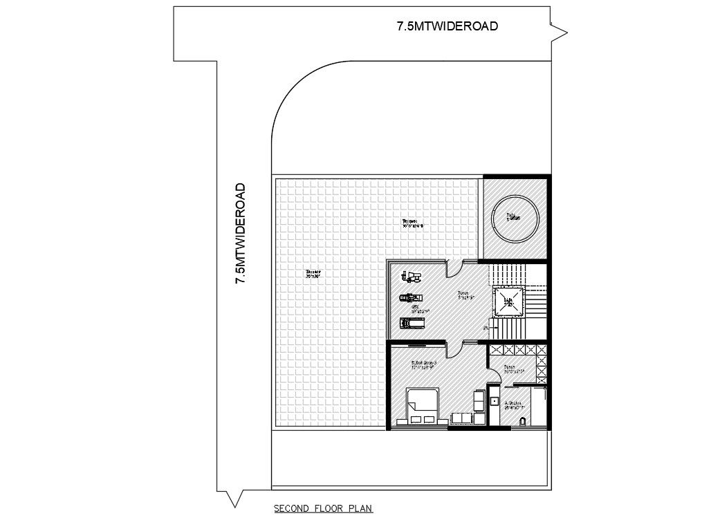
free download this drawing which is related to residential building second floor with furniture layout plan, well presentable drawing.in this drawing one bedroom with attached toilet and dress, gymnasium,lift-stair with foyer, terrace and pooja room.
Uploaded by:
Rashmi
Solanki

