Hotel Floor Plan With Construction Working Drawing
Description
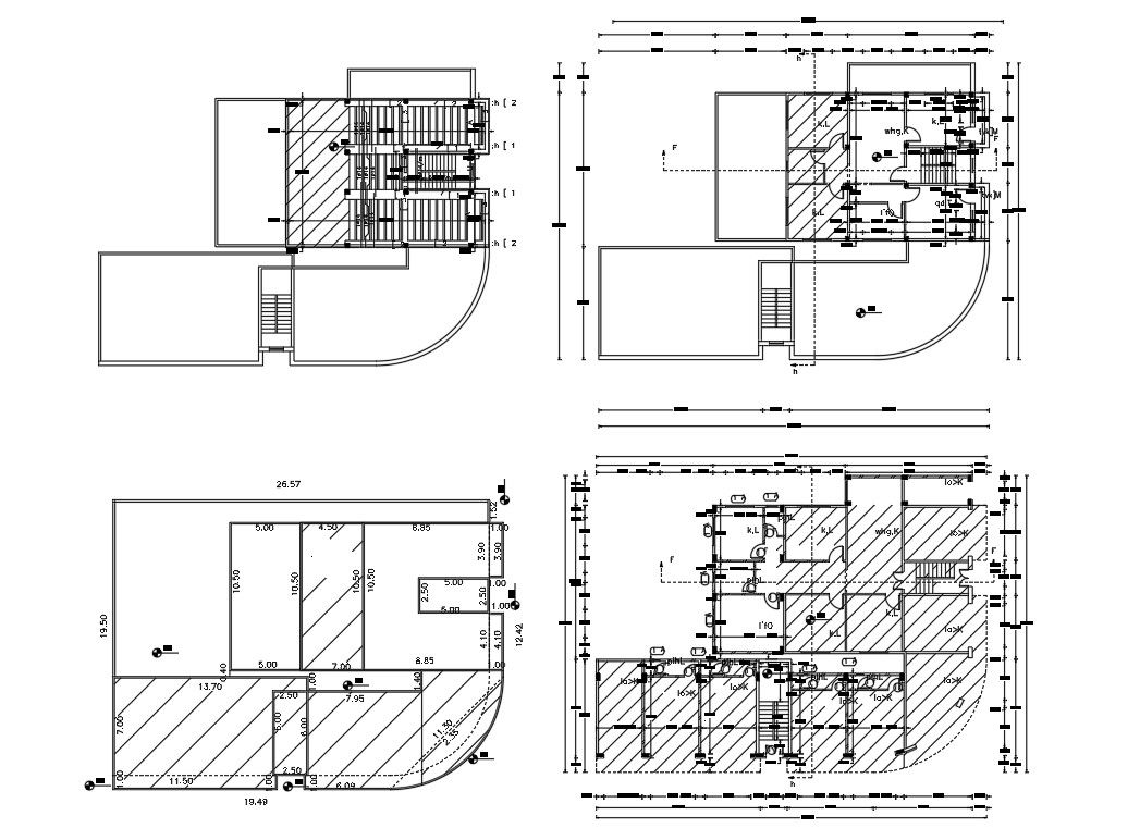
the architecture hotel bedroom floor plan CAD drawing includes column layout plan, reinforcement slab bar structure detail and site plot plan with area survey and dimension detail. download hotel floor plan AutoCAD drawing DWG file.
Uploaded by:

