Single Storey House Building Design AutoCAD Drawing
Description
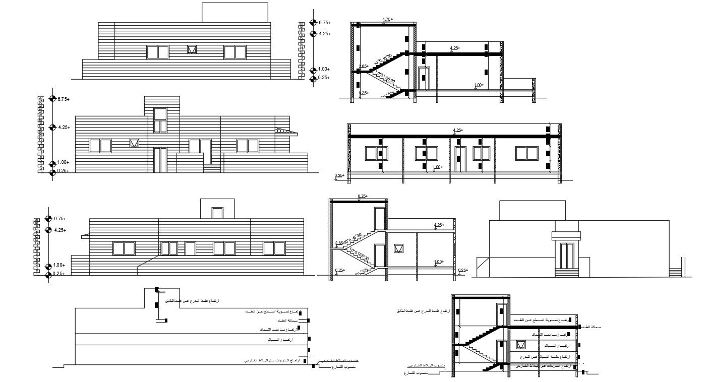
2d CAD drawing of residence house building elevation design and section drawing that shows a single-story floor level with dimension detail. download house building design DWG file and get more detail of RCC staircase and wall section drawing.
Uploaded by:

