Apartment House Plan Drawing With 2 Different Options
Description
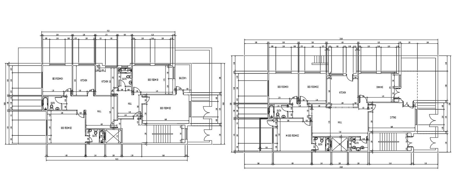
Architecture AutoCAD drawing of apartment house plan CAD drawing includes2 different option available 2 bedroom house plan and 3 bedroom house plan with dimension detail. Download DWG file of apartment cluster plan drawing.
Uploaded by:

