2 BHK House Project AutoCAD Drawing DWG
Description
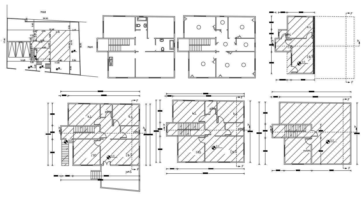
AutoCAD drawing of 2 bedroom house floor plan includes ground floor and terrace plan with site plot land survey detail and dimension detail. download DWG file of house project AutoCAD drawing and get more detail of sanitary ware and electrical plan design.
Uploaded by:
