2 BHK House With Sanitary Ware And Electrical Plan
Description
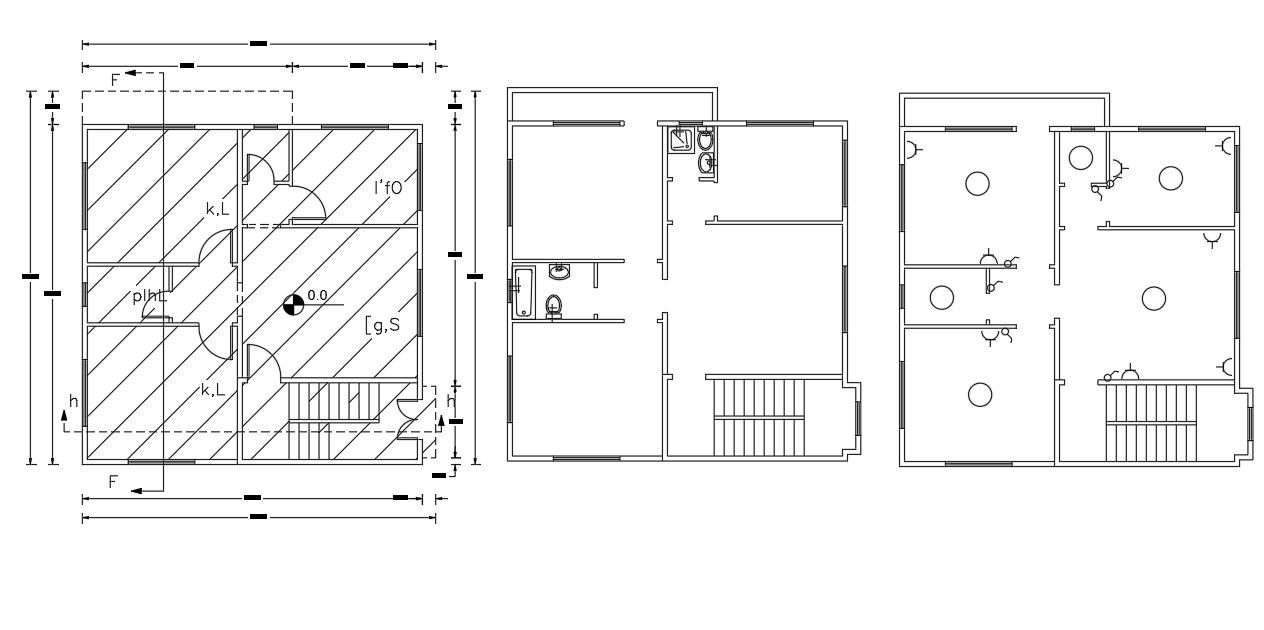
2 Bedroom House floor plan total build-up area 1050 SQ FT plot size in AutoCAD drawing along with sanitary ware and electrical layout plan with all dimension detail. Download DWG file of 2 BHK house floor plan design.
Uploaded by:

