3 BHK House With Electrical Layout AutoCAD Drawing
Description
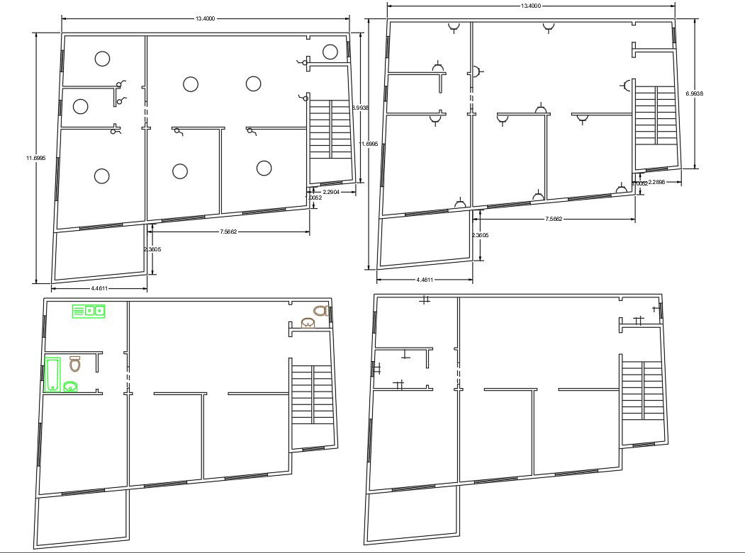
The architecture house ground floor plan includes 3 BHK house plan design with an electrical layout plan and sanitary ware detail. download DWG file of 3 BHK house plan and use this idea for your suitable plot size project.
Uploaded by:

