2 BHK Bungalow House Floor Plan AutoCAD Drawing
Description
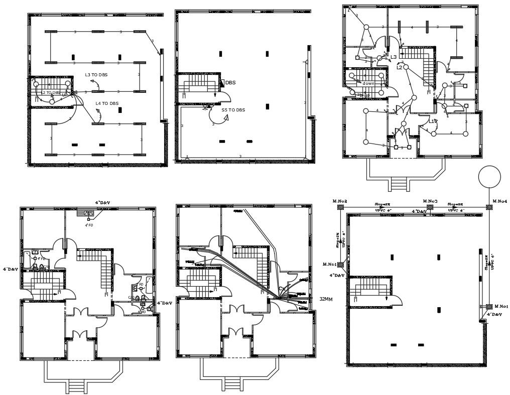
Architecture bungalow house floor plan CAD drawing of 2 bedroom house ground floor with water pile line, drainage sewage line connection to chamber box and electrical wiring layout plan design. download 2 BHK house project floor plan design Autocad drawing DWG file.
Uploaded by:

