Site Development Plan With Working Drawing CAD File
Description
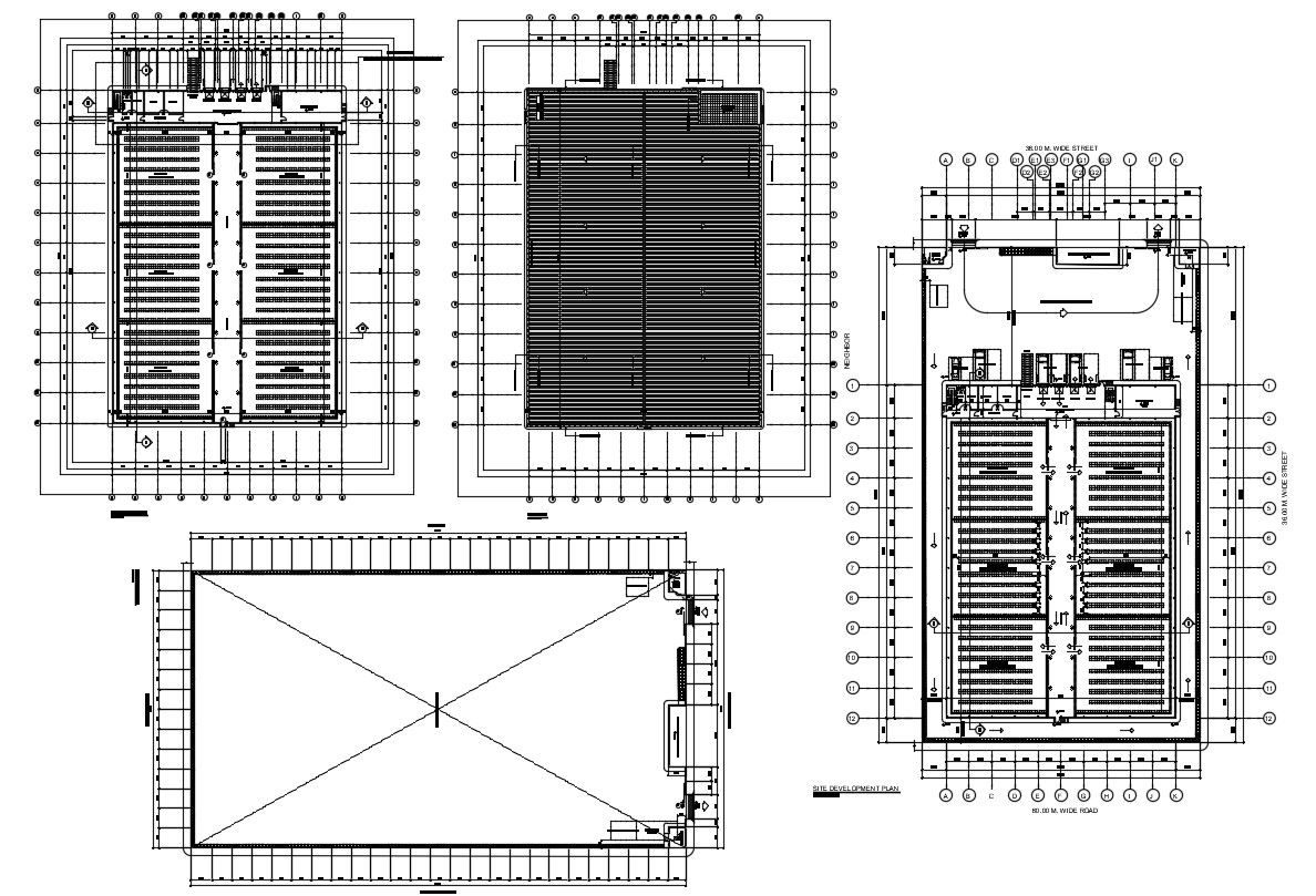
this is the drawing of huge site development with working drawing dimension details, centerline plan, iron roof design with detail texting, ground and first-floor working plan and other more details.
Uploaded by:
Rashmi
Solanki

