Architectural Simple House Design Of Three Floor AutoCAD File
Description
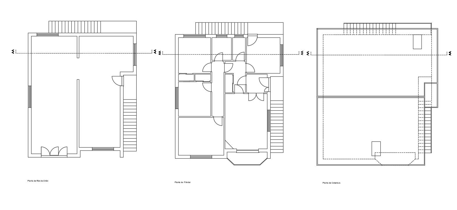
this is the simple architectural planning of residential house planning, in this plan added main hall, some big rooms on the ground floor, bedrooms with toilers. drawing rooms, one flite stairs, terrace floor plan.
Uploaded by:
Rashmi
Solanki

