Modern Planning Of House Design With Working Drawing Set CAD
Description
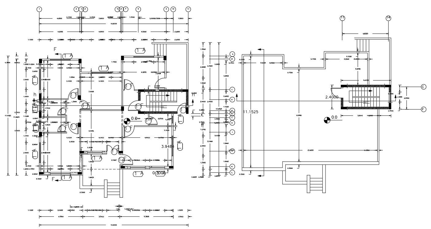
architectural planning of huge bungalow layout design with working drawing dimension details, structural column layout design, terrace floor plan with stair cabin details, it's a two-floor plan of house building design.
Uploaded by:
Rashmi
Solanki
