2 BHK House Plumbing Layout Plan DWG File

2 BHK House Plumbing Layout Plan DWG File
Profile

Uploaded by:

Komal

Description
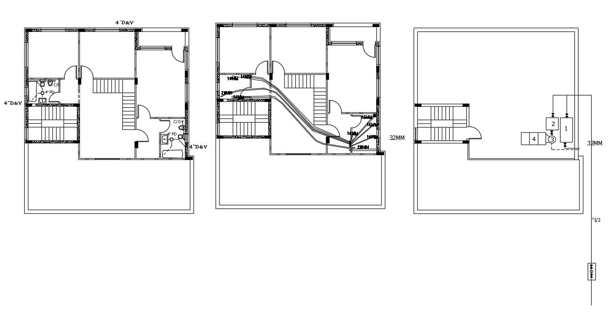
2d CAD drawing of 2bhk house plan design includes water and drainage pipeline layout plan with sanitary ware detail. Download DWG file of house plumbing layout plan design.
Profile

Uploaded by:

Komal

find Latest

Related Files