House Electrical And Plumbing Layout Plan DWG file
Description
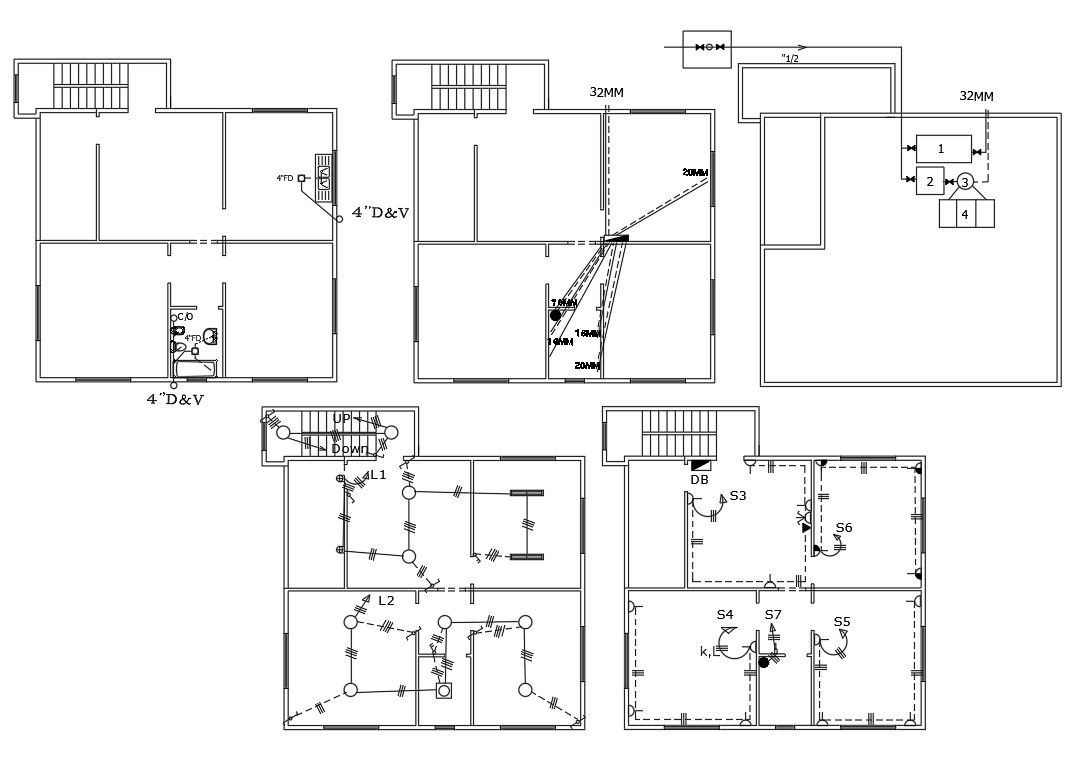
2d CAD drawing of architecture house building floor plan includes plumbing water pipeline and drainage line plan drawing. It also has an electrical wiring layout plan drawing DWG file. download DWG file of house plan with electrical wiring plan design.
Uploaded by:

