3 Bedroom House Ground Floor Plan With Electrical Drawing
Description
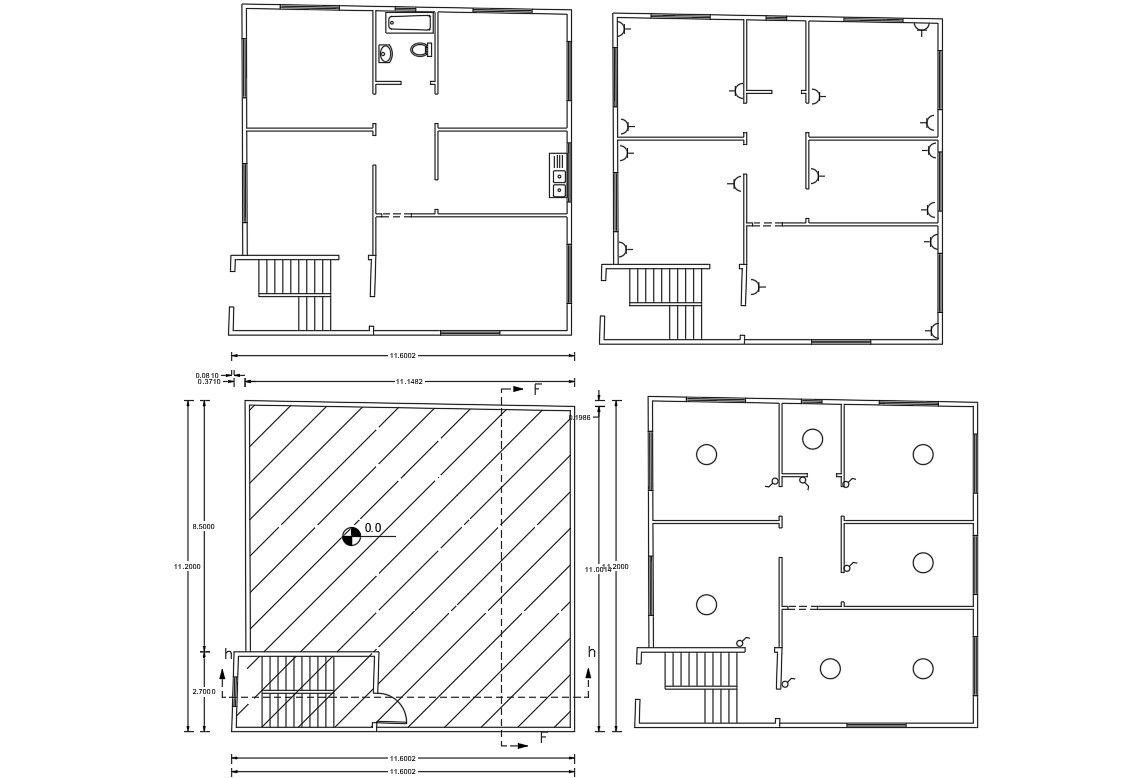
2d CAD drawing of 3 bedroom house ground floor plan and terrace plan design with an electrical layout plan and sanitary ware detail. download architecture house floor plan design and use this plan for CAD presentation.
Uploaded by:

