Two Floor Plans Of House Building Design AutoCAD Drawing
Description
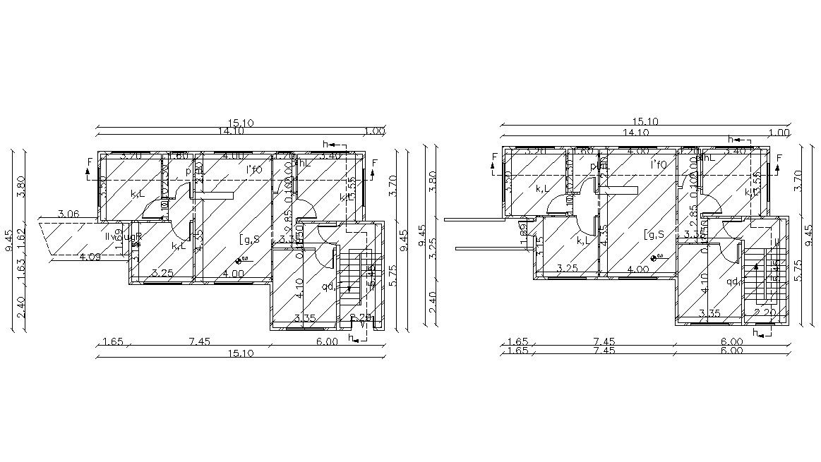
two planning of residential building design with working drawing dimension details, in this planning added drawing room, bedrooms, kitchen, toilets, doors windows marking in plan, balcony and other more details.
Uploaded by:
Rashmi
Solanki

