Apartment Building Floor Plan With Column Marking DWG File
Description
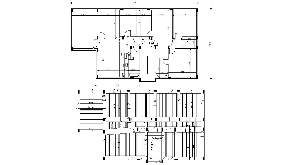
residential floor plan with structural column layout design, internal dimension details, toilets and kitchen sanitary details,beam-column marking in slab design with reinforcement details.
Uploaded by:
Rashmi
Solanki

