Huge Bungalow Planning With Working Drawing DWG File
Description
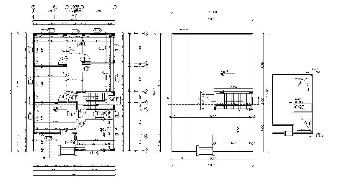
architectural residential building planning with working drawing dimension details, centerline plan, structural column layout design, terrace floor plan with stair cabin details, and plot and building demarcation survey drawing, download this drawing and use in related project.
Uploaded by:
Rashmi
Solanki

