Construction House Working Plan CAD Drawing
Description
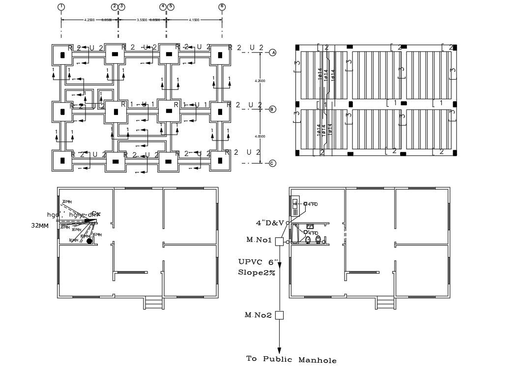
2D CAD drawing of house construction working plan design includes column footing with excavation plan detail. also has reinforcement slab which is based on the maximum bending moment shall of construction house design. download house working plan design DWG file.
Uploaded by:

