Two Elevation Of Modern Bungalow Design AutoCAD File
Description
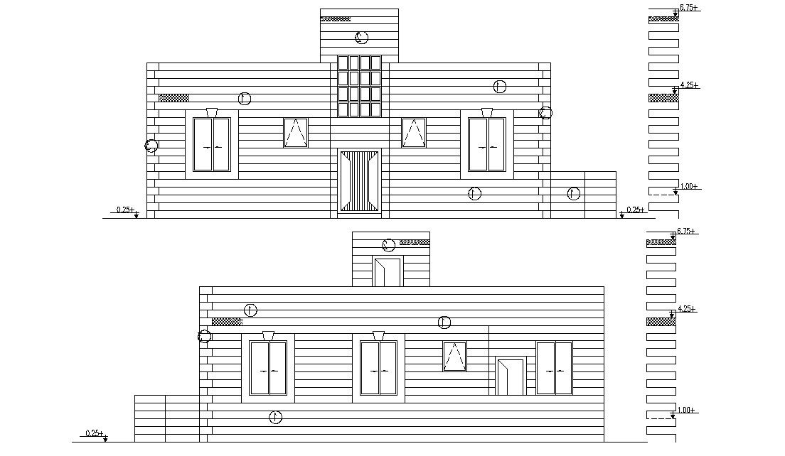
architectural drawing of residential building bungalow elevation design includes floor levels dimension details. groove design in elevation, doors and windows marking in elevations.weather shade in elevation.
Uploaded by:
Rashmi
Solanki
