35' X 40 House Plumbing And Electrical Layout Plan Design
Description
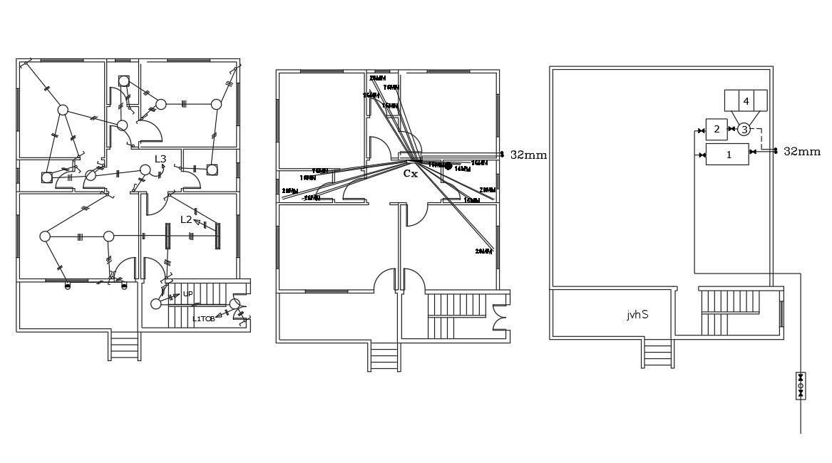
1400 SQFT plot size for house floor plan CAD drawing includes plumbing and electrical wiring layout plan design. download DWG file of house plan with pipe and wiring installation plan.
Uploaded by:

