3 BHK House Floor Plan DWG File
Description
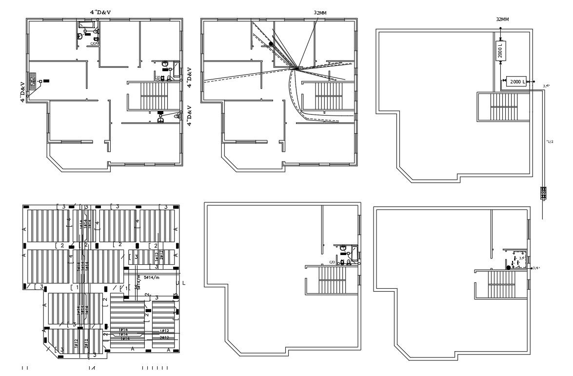
2D CAD drawing house building design CAD file includes 3 bedrooms, kitchen, drawing room, and dining area. also has a construction column slab bar and plumbing layout pan with sanitary ware detail. download DWG file of house building design AutoCAD drawing.
Uploaded by:

