2 BHK Apartment House Floor Plan Design

2 BHK Apartment House Floor Plan Design
Profile

Uploaded by:

Komal

Description
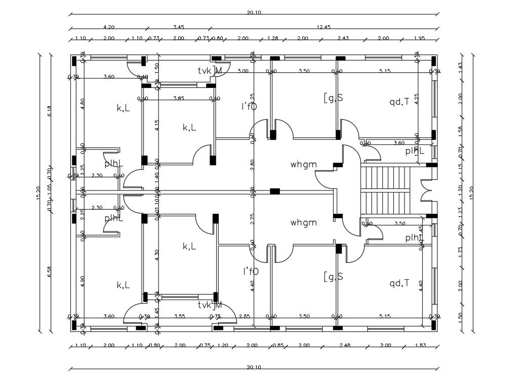
2 BHK apartment house building design CAD drawing includes column layout plan design. download 3200 SQFT plot land size apartment cluster plan with 2 unit house plan drawing DWG file.
Profile

Uploaded by:

Komal

find Latest

Related Files

WhatsApp Chat