1500 SQFT Plot Size House Construction Plan DWG File
Description
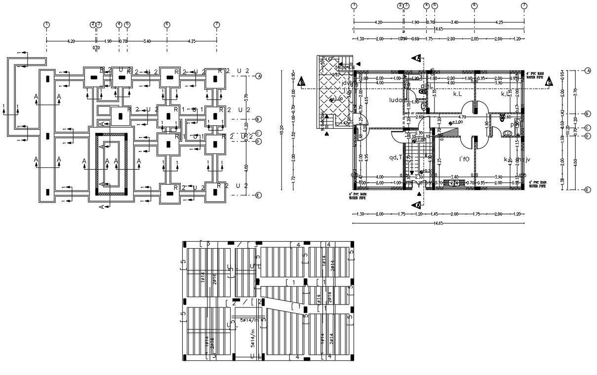
32' X 45' feet house plot size construction building AutoCAD drawing includes column footing plan, excavation p[lan and slab reinforcement bar structure design DWG file. download AutoCAD house construction plan design with dimension detail.
Uploaded by:
