Planning Of House With Plumbing And Electrical Design
Description
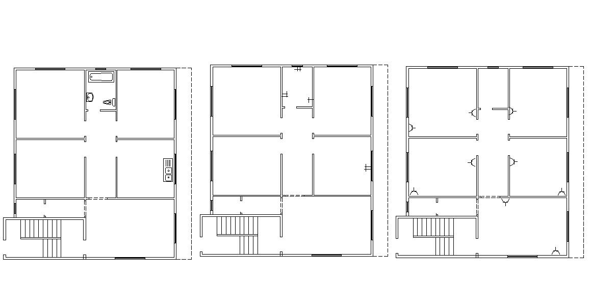
three-floor plans of architectural residential huge building design with toilet and kitchen sanitary layout plan, switchboard marking in-wall and other more details.it's a modern planning of home.
File Type:
DWG
File Size:
187 KB
Category::
Dwg Cad Blocks
Sub Category::
Autocad Plumbing Fixture Blocks
type:
Free
Uploaded by:
Rashmi
Solanki

