Architectural Apartment Building Design With Working Drawing
Description
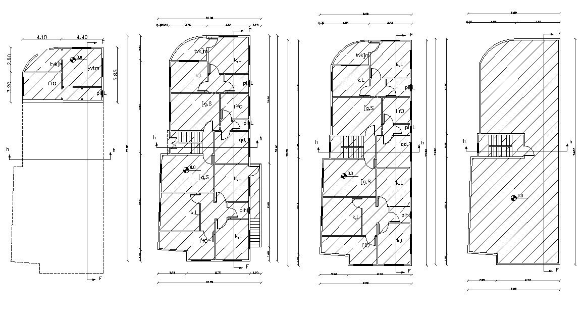
this is the all floor plans details of residential flat design with working drawing dimension details. terrace floor plan with stair cabin.this is the one cluster made in two units, inthis planning stair with foyer, drawing room, dining room, kitchen, bedrooms, toilets, typical floors plan.
Uploaded by:
Rashmi
Solanki

