Commercial And Residential Building Layout Plan With Dimension
Description
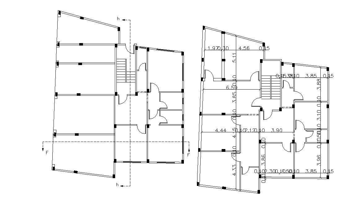
architectural drawing of commercial and residential building layout plan with working drawing dimension details. structural column marking in plan, front side shops on ground floor.this is the planning of two units of cluster design.
Uploaded by:
Rashmi
Solanki

