3 BHK Apartment House Floor Plan AutoCAD Hatching Design

3 BHK Apartment  House Floor Plan AutoCAD Hatching Design
Profile

Uploaded by:

Komal

Description
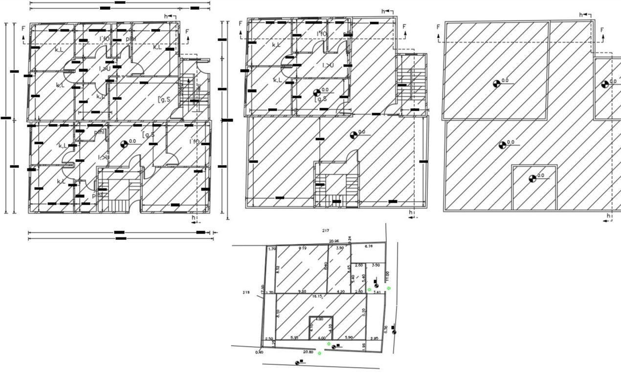
2d CAD drawing of architecture house apartment floor plan design includes AutoCAD hatching design and dimension detail. download 3 bedrooms house floor plan design with build-up plot area DWG file.
Profile

Uploaded by:

Komal

find Latest

Related Files