House Plumbing And Electrical Layout Plan CAD Drawing
Description
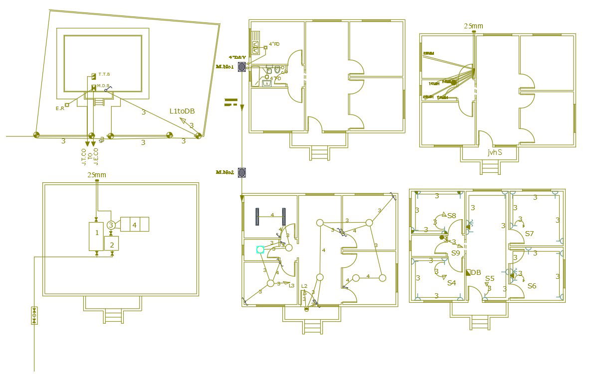
Architecture house AutoCAD plan drawing includes a plumbing plan and electrical layout plan design. download DWG file of drainage line with connections to the chamber box. download DWG file of house floor plan design.
Uploaded by:

