Single Story Four Side Elevations And Section AutoCAD File
Description
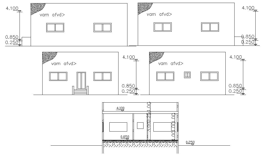
architectural drawing of simple small house elevations and section details with floor levels dimension, some hatching design in elevations, flooring material details in section and much more.
Uploaded by:
Rashmi
Solanki

