Free Download Bungalow Three Floors Plan AutoCAD Drawing
Description
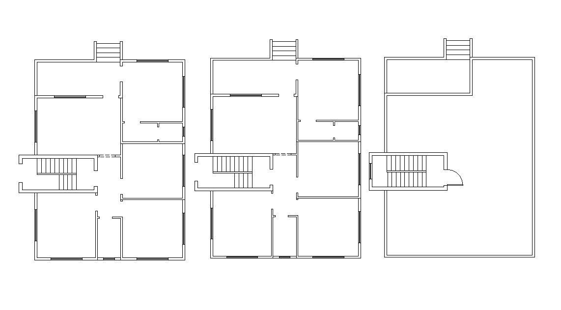
architectural modern bungalow design with three floors plan includes main foyer,drawing room, kitchen, bedrooms, toilets, stairs with passage, terrace floor plan, window marking in plan. download the DWG file format.
Uploaded by:
Rashmi
Solanki

