Architectural Building Design Of Big Bungalow AutoCAD File
Description
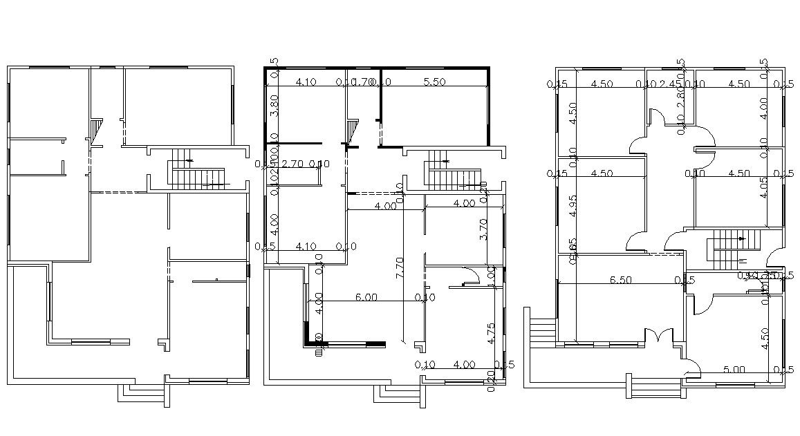
planning of huge residential bungalow with internal dimension details, doors and windows marking in plan, in this drawing added main foyer, drawing room, kitchen, bedrooms, toilets, stair with passage and other more details.
Uploaded by:
Rashmi
Solanki

