Residential Flat Design With Terrace Floor Plan AutoCAD File
Description
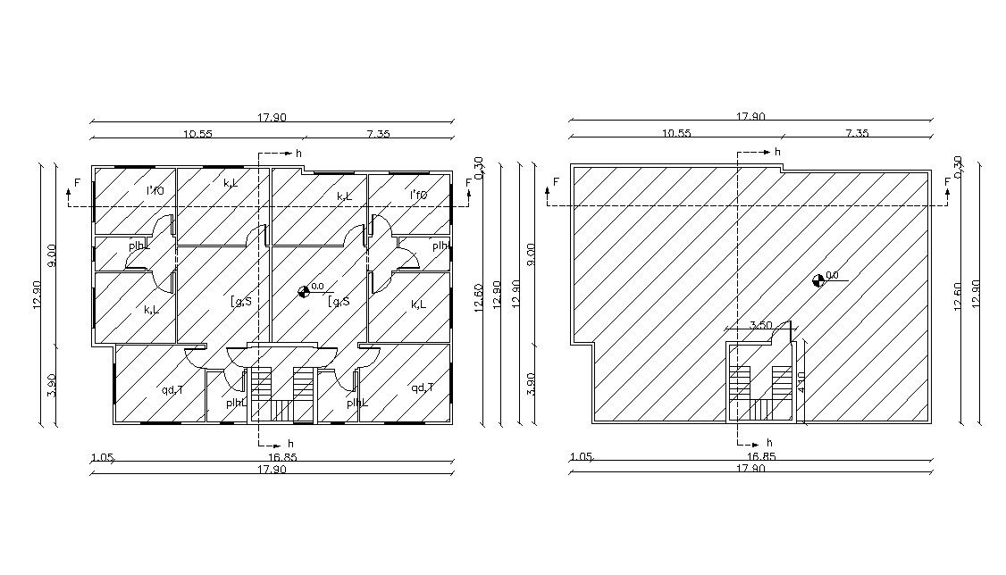
architectural drawing of apartment building design with working drawing dimension details, hatching design in plan, section line on plan, terrace floor plan and other much more details.
Uploaded by:
Rashmi
Solanki

