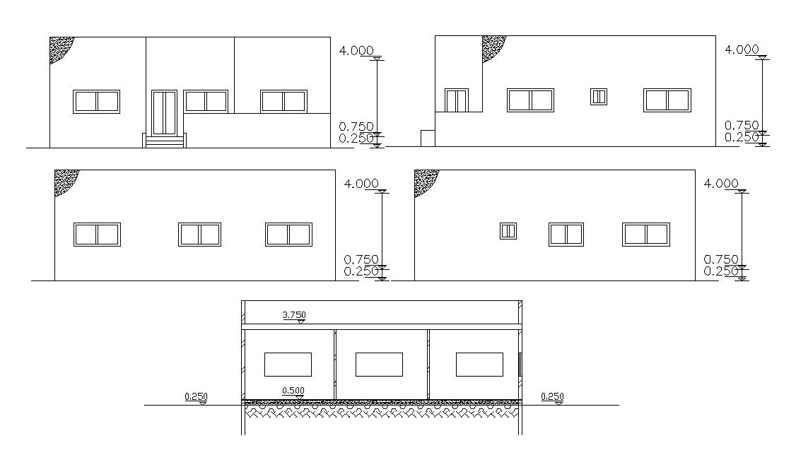
Four Side Elevations And Section Of House Design DWG
Description
download this drawing which is related to residential building elevation design and section, doors and windows marking in elevations, floor levels dimension details and much more other details in it.
Uploaded by:
Rashmi
Solanki

