Apartment House Plan With Column Footing Plan
Description
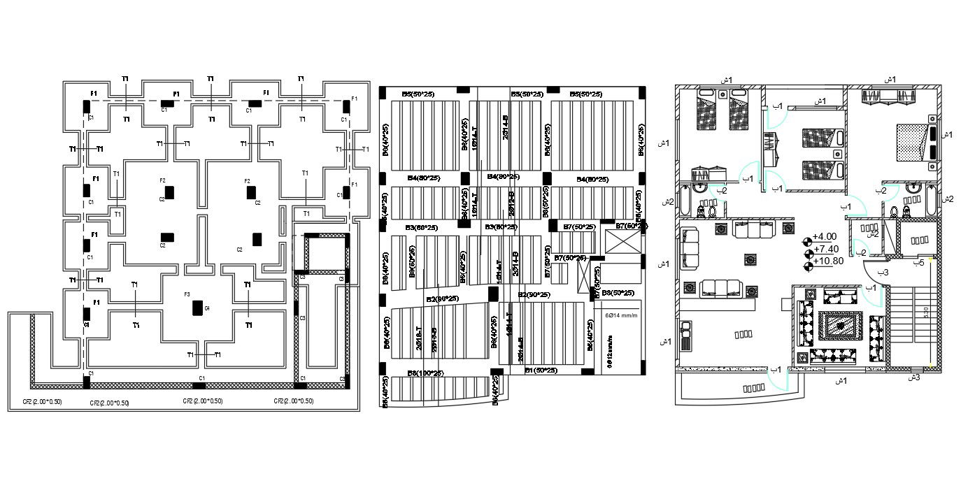
Architecture house furniture layout plan drawing includes a foundation plan, column and slab bar structure design. this single house unit in apartment plan that shows 3 bedrooms, kitchen, drawing room, and living area. download DWG file of apartment house plan AutoCAD drawing.
Uploaded by:
