1000 SQFT House Floor Plan Design
Description
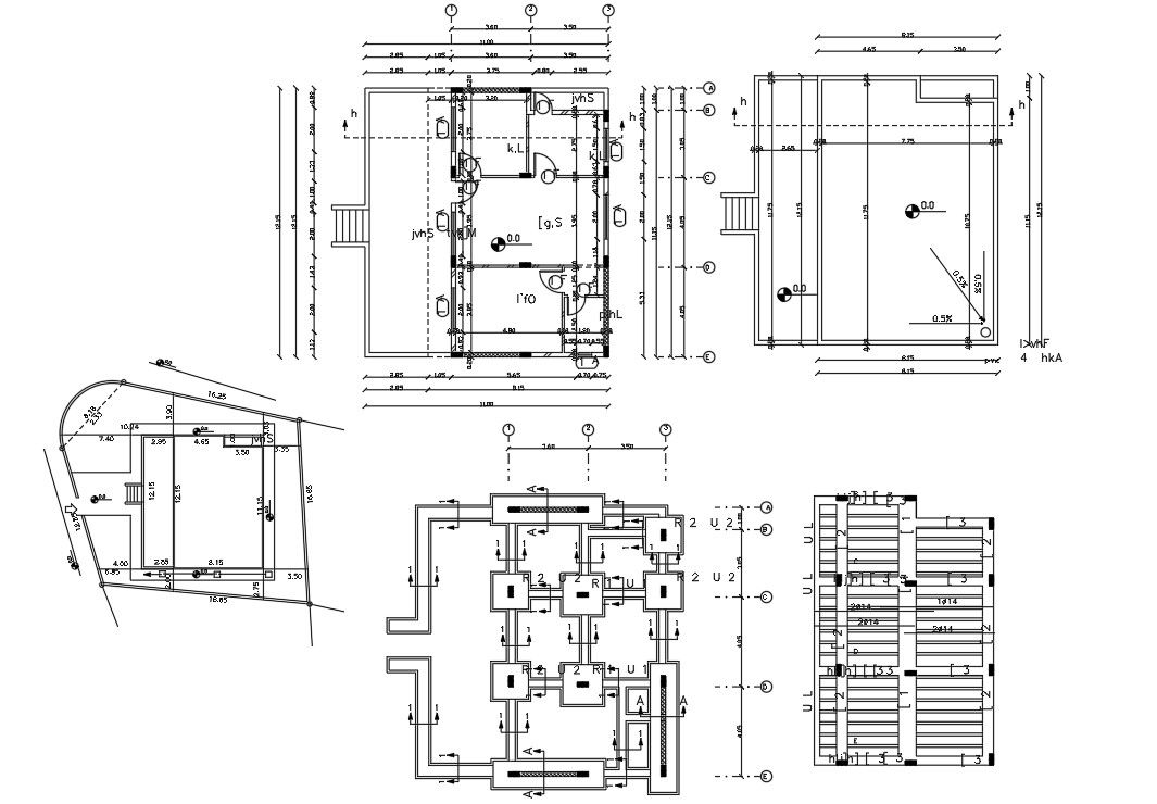
2 bedroom house floor plan design AutoCAD drawing shows 25 feet by 40 feet house plot land area survey detail with compound all design. also has column footing, excavation plan, and reinforcement slab bar structure design of house construction plan. download 2 BHK house plan design DWG file.
Uploaded by:
