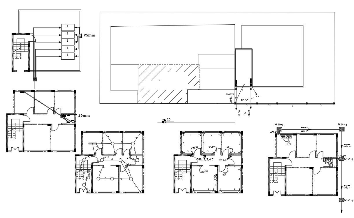
3 BHK House Plumbing And Electrical Layout Plan Design
Description
2d CAD drawing of architecture house floor plan design that shows plumbing plan, sanitary ware detail, electrical layout plan, wiring plan, and drainage pipeline connection to chamber box detail. download 3 BHK house plan with column layout plan design.
Uploaded by:

