Two Elevations And Section of House Design AutoCAD File
Description
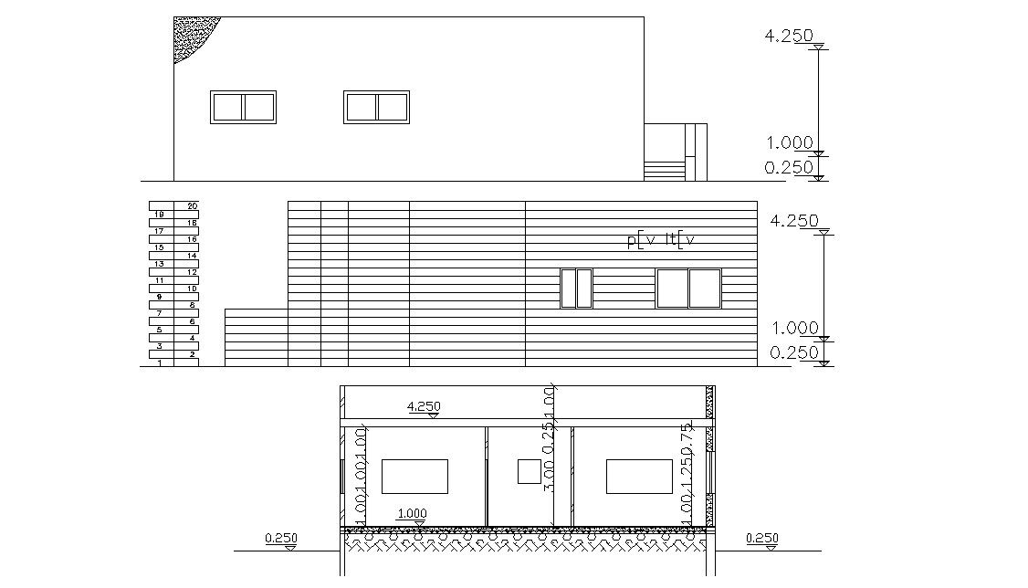
simple elevations of residential house building design with some hatching design,floor levels dimension details,doors and windows marking in elevations and other more details in this drawing.
Uploaded by:
Rashmi
Solanki

