LOGIN
HOME
CATEGORIES
UPLOAD FILE
PRICING
HOUSE PLAN
ABOUT US
CONTACT US
Free Apartment Section Drawing DWG File
Home
Categories
Architecture
Apartment Drawing
Free Apartment Section Drawing DWG File
Uploaded by:
Komal
View Profile
View Profile
Description
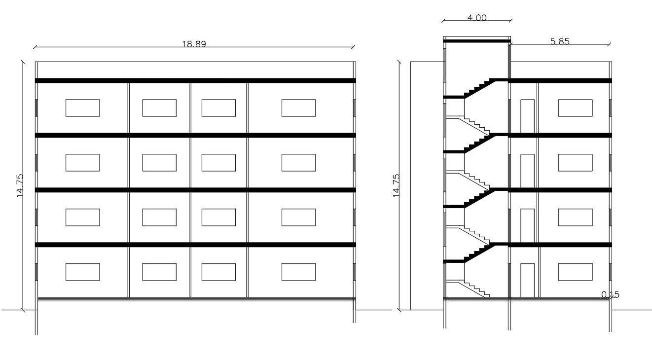
Download free Apartment section drawing includes RCC floor slab, standard staircase, and wall section with dimension detail.
File Type:
DWG
File Size:
731 KB
Category::
Architecture
Sub Category::
Apartment Drawing
type:
Free
Uploaded by:
Komal
View Profile
Download
Add to libary
find Latest
Related
Files