Architecture Bungalow House Floor Plan Design AutoCAD Drawing
Description
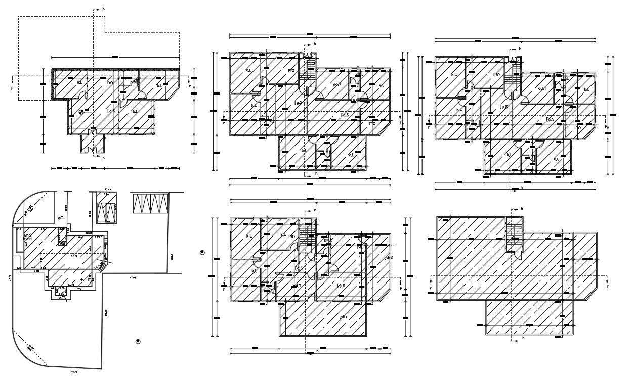
The architecture AutoCAD drawing of bungalow house floor plan design CAD drawing includes 8 bedrooms, family room, home theatre, gym, modular kitchen, library room, and porch area. download DWG file of bungalow house plan and the ground floor plan has 6 parking spaces with site plot plan.
Uploaded by:

